Bungalov 10+(4+kk)
Celkový vzhled ani dispozice se oproti Bungalovu 10 nemění, přibylo ale 7 metrů čtverečních navíc. Díky tomu si můžete užívat ještě větší terasu, ještě více dřevěného obložení a ještě více komfortu. Francouzské dveře v obytném prostoru a v ložnici v kombinaci s vysokým oknem v jídelní části zajišťují přísun přirozeného světla, které díky přímému napojení haly proniká až do středu rodinného domu.
Ke stažení: KATALOG STAVBY Bungalov 10+
PLOCHA
| zastavěná plocha | 126,5 m2 |
| užitná plocha | 106,2 m2 |
| obytná plocha | 70,5 m2 |
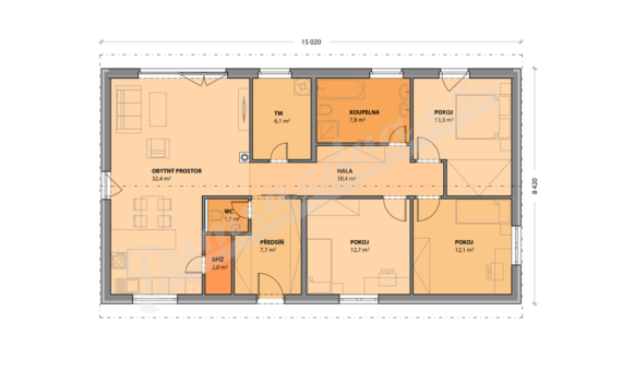
DISPOZICE DOMU
4+KK
Předsíň, hala, obytný prostor s kuchyní a vstupem na terasu, 3 pokoje, koupelna, WC, technická místnost, sklad
VSTUP NA ZAHRADU
francouzské okno
FASÁDA
kombinace standardní fasády a modřínového obkladu, okna se šedým dekorem
STŘECHA
20 stupňů, sedlová s přesahy do boků domu
PROJEKT K DOMU ZDARMA
Vypracujeme projekt pro povolení stavby a pomůžeme vám se stavebním řízením.
| hrubá stavba | 2 191 200 Kč |
| stavba k dokončení | 3 847 500 Kč |
| stavba na klíč | 4 140 900 Kč |
Uvedené ceny jsou bez DPH. Nezahrnují základovou desku ani hydroizolaci a platí pro standardní provedení dřevostavby.
DOPRAVA DO 50 KM ZDARMA.KLIENTSKÉ ÚPRAVY
Přejete si jen trochu jinou střechu, okna nebo fasádu? Nabízíme i další varianty, pro které vám po dohodě vypracujeme přesnou individuální kalkulaci. Rádi přizpůsobíme náš projekt vašim představám nebo požadavkům místních předpisů. K domu přistavíme pergolu, garážové stání nebo terasu.
Podobné projekty z naší nabídky
KONTAKTUJTE NÁS
Zaujala vás tato dřevostavba?
Napište nám nezávaznou poptávku - rádi zodpovíme vaše dotazy.